Architecture Firm California
Architectural Design & Construction Documents Contempo Studio Los Angeles
Modern architectural design and construction plans for homeowners and builders across California
Modern architectural design and construction plans for homeowners and builders across California
At Contempo Studio, we collaborate with homeowners, builders, and developers across Los Angeles and throughout California who value design, precision, and efficiency.
Whether you’re planning a new custom home, an ADU, a remodel, or a multi-family development, our team provides the complete architectural support you need — from concept to permit-ready plans.
We partner with:
Every project is approached with care, creativity, and a deep understanding of California’s building codes, Title 24 requirements, and local jurisdiction processes — helping our clients build with confidence.

Contempo Studio is a renowned firm that specializes in providing a comprehensive range of Architectural Design Services to clients in need of innovative and functional designs. With their vast expertise and commitment to excellence, Contempo offers a seamless experience from project inception to completion.
One of the key offerings provided by them is their Complete Architectural Services. They possess a highly skilled team of architects and designers who collaborate closely with clients to understand their vision and translate it into stunning architectural designs. From initial concept development to final construction documentation, Contempo Studio ensures that every aspect of the project is meticulously planned and executed.

We design custom homes across California with a focus on clarity, function, and timeless style. From concept to permit-ready plans, our team ensures your new home design in Los Angeles meets local codes and reflects your vision.

Transform your existing space with thoughtful, modern design. Our home remodel plans blend creativity and precision, improving flow and functionality while staying compliant with California building requirements.

We use BIM modeling to align architecture, structure, and MEP preventing issues before construction begins. Our coordination drawings bring efficiency, accuracy, and smoother approvals to every project.

We bridge the gap between design and construction, ensuring every detail translates seamlessly from plans to build. Our team collaborates closely with contractors and consultants to minimize revisions, prevent delays, and keep your project aligned from concept to completion.

From concept to approval, we create Accessory Dwelling Units (ADUs) that add value and versatility to your property. Our team designs smart, code-compliant layouts tailored to your lot, budget, and goals — making your ADU design in Los Angeles seamless from start to finish.

Our permit expediting services simplify the approval process with California jurisdictions. We handle submittals, city reviews, and follow-ups — keeping communication clear and timelines efficient so your project moves forward without unnecessary delays.

Before design begins, our feasibility studies evaluate zoning, setbacks, site conditions, and building potential. We help you understand what’s possible on your property — saving time, avoiding surprises, and setting a clear foundation for smart design decisions.

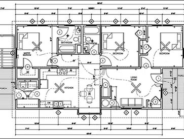
We prepare detailed construction documents that meet California city and county requirements — ready for plan check and permit submission. Every drawing is coordinated across architectural, structural, and MEP disciplines for accuracy and approval efficiency.

We simplify the permit process by managing submittals, corrections, and coordination with California city jurisdictions. Our experience with plan checkers helps move your project from design to approval quickly and efficiently.

We provide structural design solutions that balance safety, efficiency, and aesthetics. Working closely with licensed engineers, we deliver coordinated drawings and calculations that meet California building standards and integrate seamlessly with architectural plans.

Our team handles Title 24 documentation to ensure every project meets California’s strict energy standards. We integrate compliance early in the design process to save time, avoid delays, and keep your project on track for approval.

Bring your project to life before it’s built. We create realistic 3D renderings and visualizations that help clients and builders understand every design detail, making decision-making easy and presentations impactful.
Our mission is to consistently deliver innovative and high-quality Architectural Home Design that exceed client expectations. We strive for excellence in aesthetics, functionality, and sustainability.
We prioritize understanding our clients unique needs and aspirations. By providing personalized attention and tailored design solutions, we aim to achieve their goals and surpass their expectations.
We are dedicated to promoting environmentally responsible design practices. Our mission is to integrate sustainable strategies, materials, and technologies into our projects to minimize their ecological footprint and maximize energy efficiency.
Programming: Gathering client information to establish project requirements and goals.
Conceptual Design: Creating initial design concepts and exploring spatial possibilities.
Schematic Design: Refining design with detailed plans, elevations, and material selections.
Design Development: Further refining design with detailed drawings and specifications.
Construction Documents: Creating comprehensive instructions for builders, including permits and materials.
We use cookies to analyze website traffic and optimize your website experience. By accepting our use of cookies, your data will be aggregated with all other user data.